Ter Pelkwijkpark Zwolle
Ontwerp: 2014
Opdrachtgever: particulier
In samenwerking met: Alferink van Schieveen, GWBO, Bouwbedrijf van Pijkeren, Koller installatietechniek en Mchel Rensen
Programma: wonen
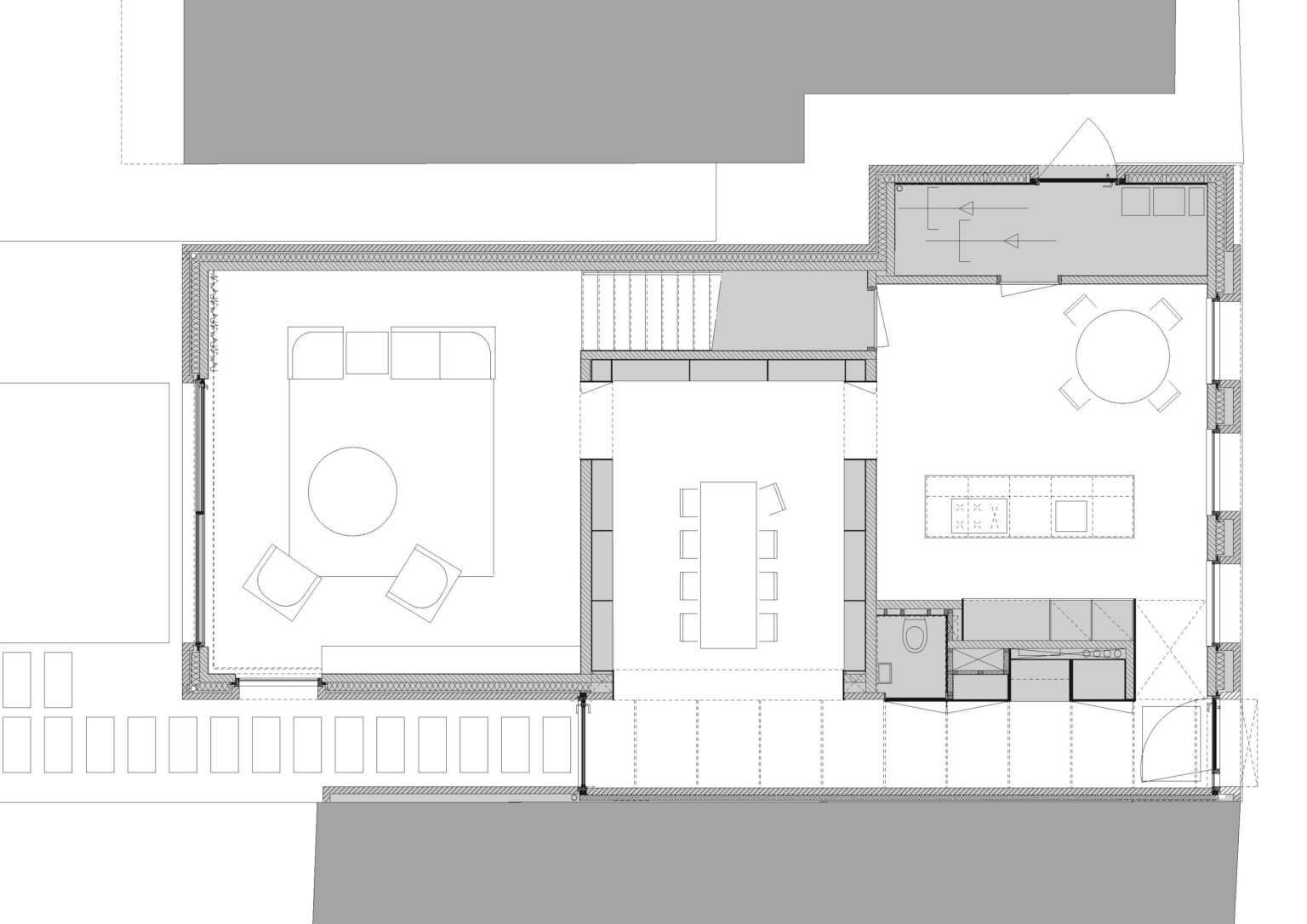
Bij de verbouwing van deze boerderij aan de rand van Hoonhorst zijn strategische aanpassingen in de plattegrond en doorsnede aangebracht. Hierdoor is het gebouw niet alleen ruimtelijk verbeterd, maar ook functioneel aangepast aan de eisen van deze tijd. De hoofdstructuur van de boerderij speelt een centrale rol in het ontwerp. De vroegere stal wordt van het woonhuis gescheiden door een brandmuur.
De stal heeft, door de lagere verdiepingshoogte en bakstenen plafonds, een geheel andere sfeer dan het woonhuis, dat wordt gekenmerkt door relatief hoge plafonds. Dit contrast komt tot uitdrukking in het nieuwe ontwerp, waarin vier verblijfsruimten rondom een centrale kern zijn gecreëerd. De positie van deze kern is bepaald door de bestaande brandmuur, waardoor vier kamers met elk eigen afmetingen en functies ontstaan.
Ondanks de grote openingen tussen de kamers en naar het omliggende landschap blijven de ruimten als afzonderlijke kamers herkenbaar. Dit versterkt de relatie tussen de binnen- en buitenruimte. Er is zorgvuldig gezocht naar een minimale hoekmaat die de kamerstructuur behoudt. Uit ruimtelijke modellen bleek dat een hoek van 600 mm al voldoende is om dit effect te bereiken. Dit principe is nauwkeurig toegepast in het gehele ontwerp van het hoofdvolume.
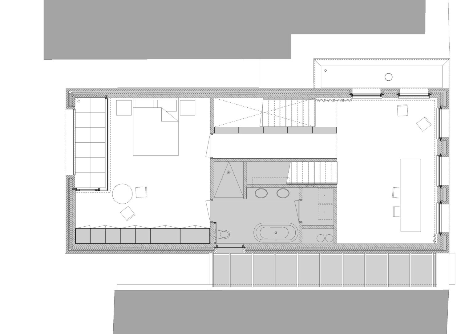
Het bakhuis, ofwel ’t hûske, is aangepast om een slaapkamer op de begane grond te realiseren. Deze uitbreiding vergroot het bestaande oppervlak en is ontworpen met het uitzicht vanuit de woning als uitgangspunt. Hierdoor ontstaat een lange muur langs het oprijpad, die tevens als barrière fungeert. Deze muur wordt enkel onderbroken door de entree.
De entree, met daarachter een licht oplopende gang naar het hoofdvolume, is zowel binnen als buiten voorzien van een afwijkende materialisatie, wat zorgt voor een subtiele, maar duidelijke overgang.












